Projekty, na které jsme hrdí

Od bytových domů po zoologickou zahradu. Každá zakázka má svůj příběh — podívejte se, jak pracujeme.

9 dokončených projektů
8,5+ mil. Kč celková hodnota
300 vyvážených radiátorů
700 m vyměněných rozvodů
Bytový dům 2023–2024

BD Milovice — hydraulické vyvážení topení ve dvou bytových domech

Přetopené byty nahoře, studené dole. 300 radiátorů ve dvou domech jsme sladili tak, aby každý byt dostal přesně tolik tepla, kolik potřebuje.

1,3 mil. Kč Bytové domy Milovice Hydraulické vyvážení topného systému
Regulační ventilyCirkulační čerpadlo
Celý příběh projektu
Byt 2024

Praha 7 — kompletní rekonstrukce rozvodů v bytové jednotce

Kompletní výměna rozvodů v bytě — voda, topení, odpady. Systém ALPEX s životností přes 50 let, místo starých trubek, které pamatují normalizaci.

300 tis. Kč Praha 7 Rekonstrukce rozvodů
ALPEXHT
Celý příběh projektu
Náš největší projekt
Instituce 2023

Středisko Klíčov — náhrada 700 metrů rozvodů v havarijním stavu

700 metrů nového potrubí ve výchovném ústavu, kde se muselo pracovat s ohledem na chod školy i ubytování. Náš dosud největší projekt.

1,6 mil. Kč Výchovný ústav Klíčov Oprava havarijního stavu — výměna rozvodů
Lisovaná ocelPPR
Celý příběh projektu
Veřejná budova 2023

Okresní soud Nymburk — rekonstrukce kotelny o výkonu 300 kW

Nová kotelna s výkonem 300 kW pro okresní soud. Kotle Junkers, signalizace Siemens a precizní dokumentace, kterou veřejné instituce vyžadují.

1,1 mil. Kč Okresní soud Nymburk Rekonstrukce kotelny
Svařovaná ocelPPRHT
Celý příběh projektu
Veřejná budova 2023

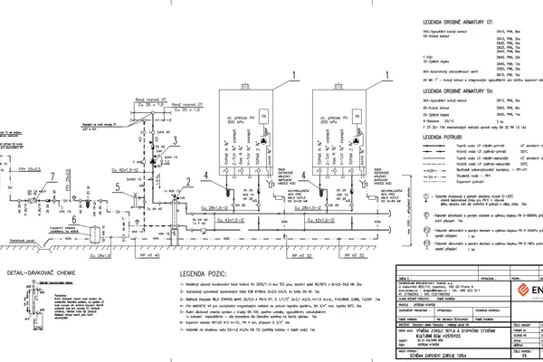
KD Hostovice — kompletní výměna topného systému

Kompletní výměna topného systému v kulturním domě — od kotelny po poslední radiátor. A to vše bez jediné zrušené akce.

1 mil. Kč Kulturní dům Hostovice Výměna topného systému
Lisovaná měďLisovaná ocel
Celý příběh projektu
Instituce 2023

Zoo Praha — výměna vodovodního potrubí v pavilonu Šelminec

Lisovaný nerez v pavilonu šelem. Práce v koordinaci s provozem zoologické zahrady — a s obyvateli pavilonu za stěnou.

900 tis. Kč Zoo Praha Výměna potrubního vedení
Lisovaný nerez
Celý příběh projektu
Zoo Praha
Komerční objekt 2023

Restaurace Příbram — nový topný systém od kotle po radiátory

Nový kondenzační kotel a otopná tělesa. Restaurace potřebovala spolehlivé teplo bez výpadku provozu a s nižšími náklady na plyn.

600 tis. Kč Restaurace Příbram Rekonstrukce topného systému
Lisovaná měď
Celý příběh projektu
Byt 2023

Praha 6 Vokovice — kompletní rekonstrukce rozvodů v bytě 120 m²

Byt 120 m² s podlahovým topením v celé ploše. Práce jako subdodávka — každé řemeslo muselo do sebe přesně zapadat.

400 tis. Kč Praha 6 – Vokovice Rekonstrukce rozvodů + podlahové topení
REHAULisovaná měďPPRHT
Celý příběh projektu
Bytový dům 2023

BD Klecany — montáž tří tepelných čerpadel Acond

Tři tepelná čerpadla Acond pro celý bytový dům. Akumulační nádrže 1 500 litrů a rozvody z lisované mědi. Úspora za energie pro všechny obyvatele.

300 tis. Kč Bytový dům Klecany Montáž tepelných čerpadel
Lisovaná měďPPRHT
Celý příběh projektu

Chcete podobný projekt?

Popište nám, co potřebujete, a do druhého dne vám zašleme cenovou nabídku.