Veřejná budova

KD Hostovice — kompletní výměna topného systému

Klient Kulturní dům Hostovice
Rok 2023
Hodnota zakázky 1 mil. Kč
Materiály Lisovaná měď, Lisovaná ocel
Typ práce Výměna topného systému
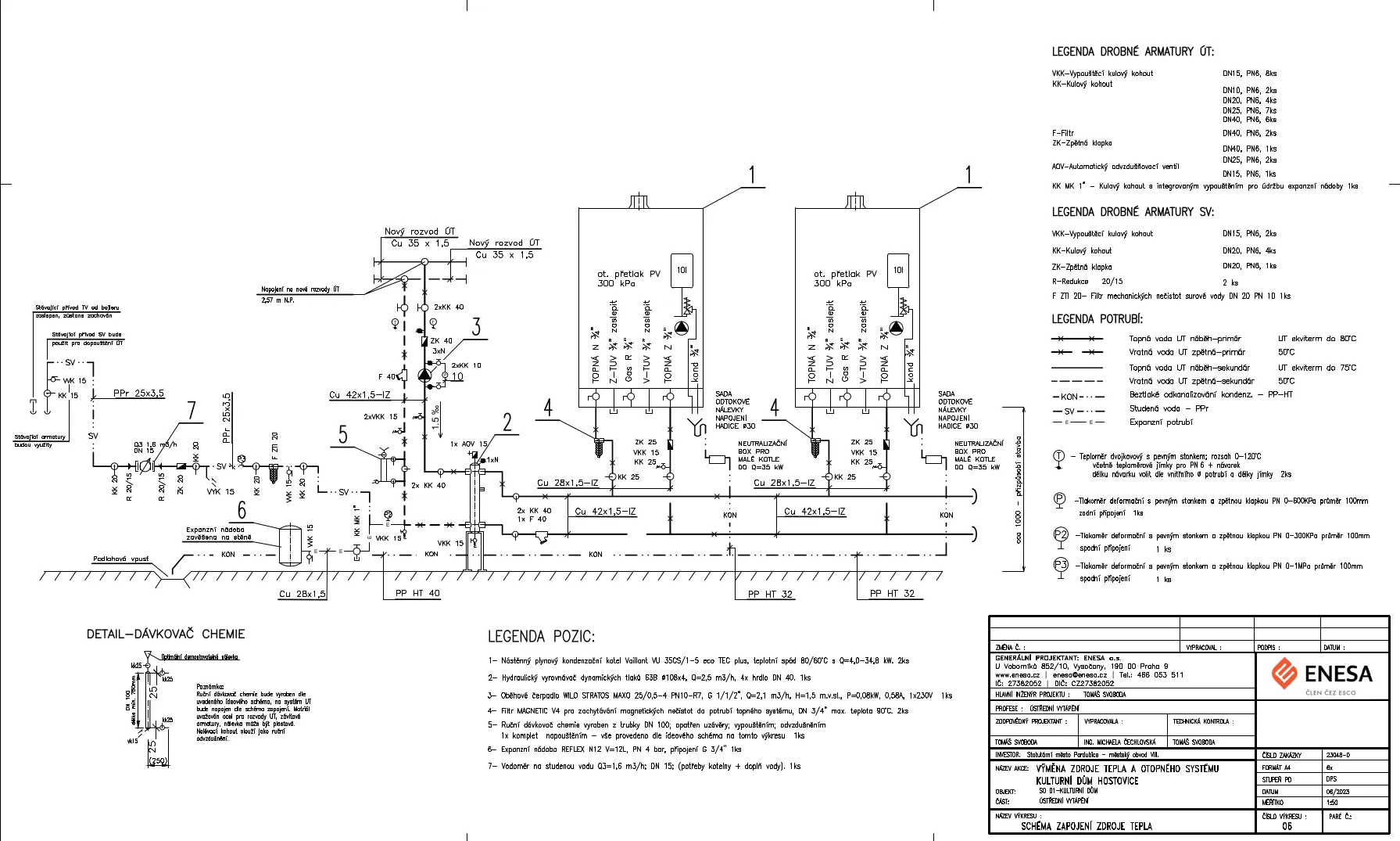
KD Hostovice — kompletní výměna topného systému — hlavní fotografie projektu

Výzva

Kulturní dům v Hostovicích potřeboval vyměnit topný systém od sklepa po střechu — technologii vytápění, rozvody i radiátory. Původní systém byl zastaralý, neefektivní a stále nákladnější na provoz. Ale kulturák je místo, kde se pořád něco děje — koncerty, přednášky, taneční. Takže jsme museli pracovat tak, aby se žádná akce nemusela rušit kvůli tomu, že nemáme hotovo.

Řešení

Naplánovali jsme výměnu po etapách podle programu kulturního domu. Vyměnili jsme kompletně všechno: novou technologii vytápění, rozvody z lisované mědi a oceli a nové radiátory ve všech prostorách. Lisovaná měď nám umožnila rychlejší montáž než svařování — což bylo klíčové v prostorách, kde se ještě den předtím konala akce.

Výsledek

Kulturní dům má kompletně nový topný systém, který je efektivnější a levnější na provoz. A hlavně — žádná plánovaná akce se kvůli rekonstrukci nerušila. Koordinace s programem kulturáku byla náročná, ale vyplatila se. Modernější technologie vytápění navíc snížila provozní náklady, takže obec šetří každou topnou sezónu.

Plánujete výměnu topení ve veřejném objektu?

Plánujeme a realizujeme topné systémy pro kulturní domy, školy a další veřejné budovy. Popište nám rozsah — nabídku připravíme do druhého dne.